РОСА - система автоматического полива

Автоматический полив «под ключ» в Казани.
Продажа оборудования

Тех поддержка 12/7
Сезонное обслуживание
Empty
Проектирование систем полива
Проектирование систем полива Проектирование систем полива
Проектирование систем полива

Проектирование систем полива

Артикул: Проект полив

900 руб.
Итого: 900 руб.
Инструкция
План-схема вашего участка бесплатно
с подробным проектом полива
Видео инструкция
Для установки своими руками
100% результат
Бесплатная доставка
При заказе на сумму более 50 000руб
Получить товар
Отгрузка в день оплаты, большой выбор пунктов выдачи, быстрая доставка в срок
Страховка доставки
Товар целый и исправный в полном объеме или возмещение средств
Гарантия
Оригинальный товар, гарантия от производителя и продовца

Производитель: «»

Проектирование

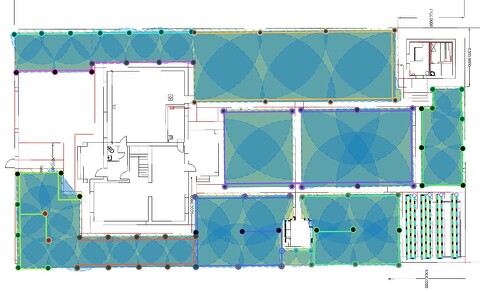
Для начала работы над проектом системы автоматического полива нам понадобится план участка в любом формате. После этого мы выполняем БЕСПЛАТНОЕ коммерческое предложение, которое включает в себя:

- План полива с расстановкой спринклеров

- Предварительную стоимость оборудования и работ

При условии Вашего одобрения мы разрабатываем для вас комплект проектных документов для системы автоматического полива, которая содержит всё необходимое для закупки оборудования произведения работ, а именно:

- Пояснительную записку
- План расстановки спринклеров
- План трассировки трубопровода
- План трассировки эл. кабеля
- Схемы сборки основных узлов
- Спецификацию со стоимостью и количеством всего оборудования

 

Сроки проектирования

Участок до 40 соток (4 000 м2)

1 – 2 дня

80 соток (8 000м2)

2 – 3 дня

от 80 соток до 2 Га

3 – 7 дней

Более 2 Га

Индивидуально

 

Стоимость проектирования*

Участок до 20 соток

(2 000м2)

Бесплатно или 4000 руб.

Более 20 соток

200 руб. за сотку**

*Бесплатно в случае закупки оборудования

**в расчет берется общая площадь участка со всеми строениями

 

 

Запрос на оптовый прайс-лист

Введите свои контактные данные, чтобы мы отправили оптовый прайс-лист нашей продукции на Вашу электронную почту



×
Загрузки
Опросный лист АВТОПОЛИВ 2018.pdf

Скачать


Бланк замера участка для полива 2018.pdf

Скачать

×
Инструкции
Инструкция для монтажа автополива Hunter.pdf

Скачать


Инструкции для монтажа полива Rain bird.pdf

Скачать